768 W 24TH ST S

Ogden, UT 84401

Rambler/Ranch

Ogden, UT 84401

768 W 24TH ST S

$800,000

MLS#: 2134989

Status: Active

Listing provided by: KW WESTFIELD

Listing agent phone: None

Last update: a month ago

On site: 3 months ago

BROOKLYN ADDITION / 24TH STREET SUBDIVISION - Residential

About

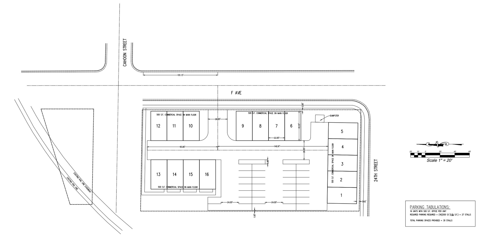
24th Street Investor/Builder/Developer Opportunity Rental Home + 1.03 Acres Property Details: 1.03-acre lot with single-family home (vacant, proven rental history). Seller motivated to build, but will consider offers to sell. Rezone approved by planning commission & City Council for 16+ mixed-use townhomes (~1,700 sq. ft. residential + 500 sq. ft. commercial, each with 2-car garages). Potential for Phase 2 expansion with additional acreage via vacated city road. Comparable sold new built townhomes are between $475K-$525K. Land value if fully entitled would be $1,100,000. Plenty of meat on the bone for a quick exit and lots of upside for the new owner. Opportunity: Prime location near new upcoming I-15 interchange, Weber State University, and downtown Ogden. Ogden City redevelopment driving demand for housing and mixed-use projects. Immediate options to lease home for income or use during entitlement/build-out. Not your typical rezone. Approvals secured include: rezone, development agreement, and code amendment. Ideal for 1031 exchange buyer with immediate utility and strong future upside. Amazing opportunity for an investor, developer, or builder. Buy now, cashflow, build next, cash out later with multiple exit strategies. Full project data room available upon request. All parcel's included in the sale are: 140200004, 1410200002, 140200001, 14020003 Square footage figures are provided as a courtesy estimate only and were obtained from County Assessor. Buyer is advised to obtain an independent measurement.

Property

Beds

3

Full Baths

1

1/2 Baths

None

3/4 Baths

1

Year Built

1937

Sq.Footage

1,452

Features

Features & Amenities

Interior

  • Total Bedrooms

    3

  • Bathrooms

    1

  • 3/4 Bathrooms

    1

  • Basement YN

    YES

  • Cooling YN

    YES

  • Cooling

    Evaporative Cooling

  • Fireplace YN

    NO

  • Heating YN

    YES

  • Heating

    Central, Natural Gas, Forced Air

  • Main Level Bedrooms

    1

  • Pet friendly

    N/A

Exterior

  • Garage

    Yes

  • Garage spaces

    2

  • Construction Materials

    Aluminum Siding

  • Parking

    RV Access/Parking

  • Patio and Porch Features

    Porch

  • Pool

    No

  • View

    Mountain(s)

Area & Lot

  • Lot Features

    Corner Lot

  • Lot Size(acres)

    1.03

  • Lot Size(square feet)

    44866.8

  • Property Type

    Residential

  • Property Sub Type

    Single Family Residence

  • Architectural Style

    Rambler/Ranch

Price

  • Sales Price

    $800,000

  • Tax Amount

    $3,000

  • Zoning

    R15 MU

  • Sq. Footage

    1, 452

  • Price/SqFt

    $550

HOA

  • Association

    No

School District

  • Elementary School

    Ogden

  • Middle School

    Mound Fort

  • High School

    Ben Lomond

Property Features

  • Stories

    2

  • New Construction

    NO

  • Senior Community YN

    NO

Schedule

Schedule a Showing

Showing scheduled successfully.

What is 3 + 4 ?


Change time

Mortgage calculator

Estimate your monthly mortgage payment, including the principal and interest, property taxes, and HOA. Adjust the values to generate a more accurate rate.

Your payment

Principal and Interest:

$

Property taxes:

$

HOA fees:

$

Total loan payment:

$

Total interest amount:

$

Location

  • County

    Weber

  • Elementary School

    Ogden

  • Middle School

    Mound Fort

  • High School

    Ben Lomond

Listing Courtesy of Luke Kennard , KW WESTFIELD

RealHub Information is provided exclusively for consumers' personal, non-commercial use, and it may not be used for any purpose other than to identify prospective properties consumers may be interested in purchasing. All information deemed reliable but not guaranteed and should be independently verified. All properties are subject to prior sale, change or withdrawal. RealHub website owner shall not be responsible for any typographical errors, misinformation, misprints and shall be held totally harmless.

Agent Damon Luke

Damon Luke

President / Real Estate Advisor

Call Damon today to schedule a private showing.


* Listings on this website come from the FMLS IDX Compilation and may be held by brokerage firms other than the owner of this website. The listing brokerage is identified in any listing details. Information is deemed reliable but is not guaranteed. If you believe any FMLS listing contains material that infringes your copyrighted work please click here to review our DMCA policy and learn how to submit a takedown request.© 2024 FMLS.

Properties

Related properties

Price reduced
Situated on a quiet cul-de-sac in Shadow Valley, this custom-built 4-bedroom home offers stunning views! views! views! of the mountains from the front and back.  It is perched atop a 1.2-acre lot with no backyard neighbors to obstruct your views.  It features a new, HEATED driveway.   Inside, you will find a functional layout that offers flexibility for a variety of living needs.  The upper floor has two bedrooms with en-suite bathrooms, which could be used as two primary suites.  The primary bedroom also has a private covered deck.  The middle floor has 2 more bedrooms and a full bathroom.  The spacious kitchen features a large island, lots of natural light, and even a dumbwaiter from the basement for your groceries!   The huge 51' x 21' unfinished basement (with 20' ceilings) has plumbing stubbed for another bathroom.  It could be used for more bedrooms, a home theater, a golf room, etc.   There is also a huge 325 SF storage room in the basement that is not included in the square footage.  Conveniently located just minutes from outdoor recreation, WSU, Hill AFB, and Hwy 89, this property combines open space, scenic views, and versatile living in one of Ogden's most desirable bench locations.
#2159792

Ogden

1671 CHEROKEE CIR

4 Beds

2 Baths

3,754 Sq.Ft.

$880,000

MLS#: 2159792

None
#2158759

Ogden

1326 E SUNSET CT 304

6 Beds

3 Baths

3,625 Sq.Ft.

$830,000

MLS#: 2158759

Nestled in the heart of Ogden Canyon this beautiful home overlooks the Ogden River with your own private access to amazing fly fishing and stunning mountain views. Located on a secluded and serene lot in Wildwood Estates the home is surrounded by large trees and majestic mountains. This charming home has 3 bedrooms, 2 bathrooms, a remodeled kitchen and an amazing deck overlooking the river. An addition in 2004 expanded the home to include a spacious family room with a fireplace and a large bar with granite countertop and seating The home boasts a new primary suite with a beautiful rock fireplace and a private deck where you can enjoy the stunning views and the soothing sounds of the river. The kitchen is updated with newer cabinets, granite countertops, tile floor and stainless appliances. The dining area is intimate and inviting with tile floors and windows looking out to the front garden. A charming cozy den features a Lopi woodburining stove and is surrounded by windows overlooking the river. The main level is completed with two bedrooms and an updated full bathroom. Located minutes from world class skiing, boating, hunting, biking and hiking. This is a rare find! a true "one-in-a-million" place to live!!
#2159620

Ogden

655 OGDEN CYN

3 Beds

1 Baths

1,900 Sq.Ft.

$665,000

MLS#: 2159620

Experience modern living at its finest on Ogden's East Bench. This brand-new home showcases high-end contemporary finishes, expansive city and mountain views, and direct access to miles of trails right out your front door with NO backyard neighbors. Thoughtfully designed and every upgrade imaginable with 10-foot basement ceilings, a finished 575 sq ft suspended garage bonus space,  wet bar, and a walk-out lower level that opens to those stunning views. Enjoy seamless indoor-outdoor living where every detail reflects elevated style. Estimated completion date: June 30
#2157267

Ogden

571 S ELENA LN

3 Beds

2 Baths

2,715 Sq.Ft.

$750,000

MLS#: 2157267

Welcome to The Barn at Terakee Farms - a charming countryside community tucked into the peaceful surroundings of West Weber. This featured new build showcases the sought-after Emerson 1797 floor plan, offering just over 3,700 sq. ft. of thoughtfully designed space, including an unfinished basement ready for your future vision PLUS a massive cold storage area. Enjoy the convenience of single-level living with 9-foot ceilings on the main floor, 3 bedrooms, and 2.5 bathrooms. The spacious kitchen is ideal for entertaining, featuring abundant cabinetry, generous counterspace, a butler's pantry, and a dedicated dining area. The primary suite is designed for comfort, complete with a walk-in closet and a luxurious en-suite bathroom featuring a separate tub and shower, double vanity, and plenty of room to unwind. Set against serene surroundings with beautiful mountain views, this community offers the perfect blend of peaceful country living with convenient access to outdoor recreation and modern amenities. Come discover The Barn at Terakee Farms - where comfort, space, and scenery come together. ALSO call to find out about our Lender incentives! **All information deemed accurate. Buyers and Buyers agent to verify all. Square footage figures are provided as a courtesy estimate only and were obtained from the building plans. Buyer is advised to obtain an independent measurement.
#2156446

Ogden

4476 W BUCKY S 8

3 Beds

2 Baths

3,774 Sq.Ft.

$665,000

MLS#: 2156446

Nestled on Ogden's coveted east bench and just steps from scenic trails, this premier three-story home in the exclusive Valley View subdivision blends luxury living with exceptional versatility and sweeping mountain and city views. Thoughtfully designed for both everyday comfort and elevated entertaining, the home features multiple family rooms, contemporary finishes, and upscale upgrades throughout.  Two expansive decks create seamless indoor-outdoor living spaces, perfectly positioned to take in the breathtaking surroundings. Located in one of Ogden's most sought-after new communities, offering limited lots and truly unlimited views. Estimated completion date Fall 2026.
#2156071

Ogden

1590 E MADDIES CV

4 Beds

3 Baths

3,334 Sq.Ft.

$899,000

MLS#: 2156071

Price reduced
NOW MOVE IN READY!! Welcome to The Barn at Terakee Farms, a new countryside community in West Weber, just 15 minutes west of Ogden. This stunning new home features the Ridge floor plan, offering over 3,800 square feet of total space, including an unfinished basement and cold storage area ready for your future vision. Designed for comfortable single-level living, the home boasts 9-foot ceilings, three bedrooms, two bathrooms, a dedicated dining area, and a well-appointed kitchen with generous cabinet and counter space. The spacious primary suite is thoughtfully separated from the additional bedrooms and includes a walk-in closet and a separate tub and shower. Surrounded by serene landscapes and sweeping mountain views, this home perfectly blends peaceful country living with convenient access to outdoor recreation. A third-car garage with a 10-foot door provides added clearance for larger vehicles and storage needs. Thoughtfully designed for both comfort and convenience, the Ridge floor plan offers an exceptional place to call home. Square footage figures are provided as a courtesy estimate only and were obtained from the building plans. Buyer is advised to obtain an independent measurement.
#2154045

Ogden

4458 W BUCKY S 7

3 Beds

2 Baths

3,862 Sq.Ft.

$670,000

MLS#: 2154045

Shadow Valley 2-story, 5 bed/ 4 bath home on a quiet cul-de-sac. Featuring a custom remodeled primary suite with one of a kind bath & shower. Retreat to your Large bedroom with built-in walnut cabinetry, fireplace, desk, & walk-in closet. Amazing laundry with hickory cabinets & quartz countertops.  Remodeled kitchen includes mahogany cabinetry, granite countertops, & large island.  Large backyard with spacious deck, sports court, & shed. Great location close to elementary school.
#2152869

Ogden

1435 E WASHAKIE CIR S

5 Beds

3 Baths

4,336 Sq.Ft.

$794,900

MLS#: 2152869

Welcome to this spacious and beautifully designed home on just under an acre! This horse property offers peaceful country living while still being a short drive to nearby shopping and schools.  Enjoy main-level living with a flexible office or bedroom on the main floor. Upstairs features four large bedrooms, a conveniently located laundry room, and an impressive primary suite you won't want to miss.  Plenty of outdoor space for animals, family, and entertaining-perfect for embracing the country lifestyle.  Schedule your showing today by contacting the listing agent.  New Roof in 2019, A/C in 2020, Water heater in 2025, Septic pumped in 2025.
#2152906

Ogden

2020 N 6200 W

5 Beds

3 Baths

3,182 Sq.Ft.

$675,000

MLS#: 2152906

Welcome to this exceptional home located in the Uintah Highlands on .57 acres just under 4,600 square feet that blends comfort, style, and thoughtful design at every turn. Boasting 6 spacious bedrooms and 3 full bathrooms, this property offers all the room you need for luxurious living and effortless entertaining. Step outside to your own private oasis to a Trex deck perfect for lounging, grilling, or gathering with friends; a sparkling 20x40 in-ground, heated Salt Water pool, or enjoy the gorgeous yard that provides a sense of serenity with plenty of space to relax or play. Inside, the heart of the home is the showstopping primary suite, featuring an expansive, boutique-style closet that must be seen to be believed. This massive dressing space includes an all-in-one washer/dryer, adding unbeatable convenience and turning everyday routines into a true luxury experience. With generous living areas, a thoughtful layout, and standout amenities, this home delivers the ideal blend of elegance and practicality. Move-in ready and designed to impress-your dream home is waiting. Owner/Agent   Square footage figures are provided as a courtesy estimate only and were obtained from recent appraisal.  Buyer is advised to obtain an independent measurement.
#2152596

Ogden

2340 E 5950 S

6 Beds

3 Baths

4,592 Sq.Ft.

$945,000

MLS#: 2152596

24th Street Investor/Builder/Developer Opportunity Rental Home + 1.03 Acres Property Details: 1.03-acre lot with single-family home (vacant, proven rental history). Seller motivated to build, but will consider offers to sell. Rezone approved by planning commission & City Council for 16+ mixed-use townhomes (~1,700 sq. ft. residential + 500 sq. ft. commercial, each with 2-car garages). Potential for Phase 2 expansion with additional acreage via vacated city road. Comparable sold new built townhomes are between $475K-$525K. Land value if fully entitled would be $1,100,000. Plenty of meat on the bone for a quick exit and lots of upside for the new owner. Opportunity: Prime location near new upcoming I-15 interchange, Weber State University, and downtown Ogden. Ogden City redevelopment driving demand for housing and mixed-use projects. Immediate options to lease home for income or use during entitlement/build-out. Not your typical rezone. Approvals secured include: rezone, development agreement, and code amendment. Ideal for 1031 exchange buyer with immediate utility and strong future upside. Amazing opportunity for an investor, developer, or builder. Buy now, cashflow, build next, cash out later with multiple exit strategies. Full project data room available upon request. All parcel's included in the sale are: 140200004, 1410200002, 140200001, 14020003 Square footage figures are provided as a courtesy estimate only and were obtained from County Assessor. Buyer is advised to obtain an independent measurement.

768 W 24TH ST S

Message successfully sent.

I agree to receive email communication and understand I can unsubscribe at any time.

I agree to be contacted by OnX Realty via call, email, and text for real estate services. To opt out, you can reply 'stop' at any time or reply 'help' for assistance. You can also click the unsubscribe link in the emails. Message and data rates may apply. Message frequency may vary. Privacy Policy

 - property

Send a message

Message successfully sent.

Reason for contacting?

I agree to receive email communication and understand I can unsubscribe at any time.

I agree to be contacted by OnX Realty via call, email, and text for real estate services. To opt out, you can reply 'stop' at any time or reply 'help' for assistance. You can also click the unsubscribe link in the emails. Message and data rates may apply. Message frequency may vary. Privacy Policy

Sign In Sign Out

Virtual Assistant

Would you like to take the next step with this property? We can help you schedule a showing or virtual tour, or send you more details.

Yes, I would like more information.

Thank You for Your Reply, One of Our Agents will contact you as soon as possible

No, maybe later.

Thank you, you can always contact me via email, phone number or through the contact form.

Realhub AI

Lucy - Your AI-Powered Realtor

Update Your Temporary Password

Personalize your search

Enter your email and we'll notify you immediately when new listings match what you're looking for.

or enter email address

Already have an account ? Login here

Continue your home search

I agree to receive communications and understand I can unsubscribe at any time.

I agree to be contacted by OnX Realty via call, email, and text for real estate services. To opt out, you can reply 'stop' at any time or reply 'help' for assistance. You can also click the unsubscribe link in the emails. Message and data rates may apply. Message frequency may vary. Privacy Policy

Already have an account ? Login here

We use cookies

We use cookies primarily for analytics to enhance your experience. By accepting, you agree to our use of these cookies. You can manage your preferences or learn more about our cookies policy.